Departamento de 2 dormitorios PREMIUM en Pellegrini al 900
USD 144.000 - EN VENTA
Descripción
Edificio de categoría con diseño moderno, tecnología y confort premium. Ubicado en Avenida Pellegrini 932. Unidades de 1, 2, 3 y 4 dormitorios con amenities exclusivos, todos equipados con lo último en tecnología y confort. Entrega diciembre 2027.
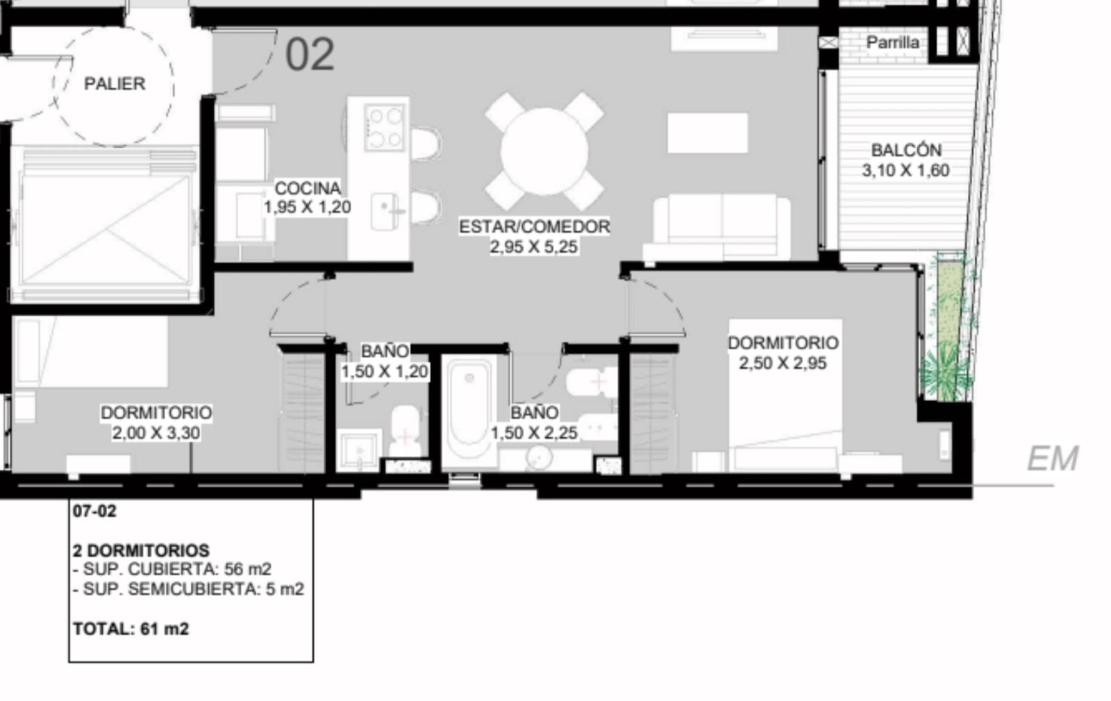
Departamento de 2 dormitorios de 61m2 totales. Cuenta con cocina integrada al estar comedor, 2 habitaciones con placares completos, 1 baño y 1 toilette. Balcón aterrazado con parrillero.
Amenities: piscina panorámica y solárium con fogonero, quincho semicubierto con parrillero, gimnasio equipado, spa y SUM coworking. Además, el edificio cuenta con bicicleteros, bauleras y espacio para carga de monopatines electricos.
Terminaciones: excelente calidad constructiva con doble muro compuesto aislado para máxima calidad térmica en medianeras, terminación con yeso en paredes y cielorraso, cerramiento de aluminio de alta prestación con vidrios DVH (doble vidriado hermético), puerta de seguridad de ingreso a departamentos con tecnología de avanzada y cerradura Smart bluetooth, puertas interiores de alta prestación con marcos y hoja de WPC, con herrajes de tecnología, hermeticidad y alto peso específico, pisos, revestimientos y zócalos de porcelanato de primera línea, placares completos, canteros integrados a la estructura del edificio, provistos de vegetación y automatizados con riego por goteo, estructuras metálicas con vegetación, iluminación en cielorraso, provisión de canilla de servicio de agua y toma de electricidad, preinstalación de aire acondicionado en todos los ambientes y puerto USB en dormitorios, mobiliario de cocinas completos con alacenas y bajo mesadas de diseño, iluminación en mobiliario, mesadas con regrueso, bacha de acero inoxidable con griferías, horno embutido y anafe separados sobre mesada, espacio provisto para purificadores de aire, mobiliario para lavarropas y termotanques, diseño de iluminación en cielorraso. Sanitarios y griferías de primera marca, bañera sin mampara o receptáculo de ducha, vanitory de diseño o mesada de mármol con bacha de apoyo, accesorios de baños y espejo retroiluminado, diseños en cielorraso con iluminación difusa.
Tecnología y Seguridad: acceso digital con reconocimiento facial, videoportero, sensores, alarma y botón de pánico.
| Detalles | |
|---|---|
| Código | KP375779 |
| Categoría | Departamentos |
| Estado | Activa |
| Ubicación | Pellegrini 932 |
| Zona | Centro |
| Barrio | Centro |
| Localidad | Rosario, Santa Fe |
| Tipo de operación | En venta |
| Ambientes | 3 |
| Dormitorios | 2 |
| Baños | 1 |
| Baños de servicio | 1 |
| Piso | 7 |
| Pisos en el edificio | 14 |
| Mts totales (mt²) | 61.00 |
| Mts cubiertos (mt²) | 56 |
| Año de construcción | 2027 |
| Expensas | ars 1111.00 |
| Nueva construcción / A estrenar | 1 |