Unidades 1 dormitorio 32 mts. San Martin y Pellegrini. Excelente calidad. Entega Dic 2027.
USD 52.000 - EN VENTA
Descripción
Departamentos de monoambientes ubicados en calle San Martin 1667, excelente zona de la ciudad de Rosario, en barrio Martin y a metros de Av. Pellegrini, cercano a numerosos restaurantes y bares, además del Parque Urquiza y Monumento a la Bandera.
Inicio de Obra Enero 2025. Entrega en Diciembre 2027.
Precio ideal para ingresar con máximo rendimiento.
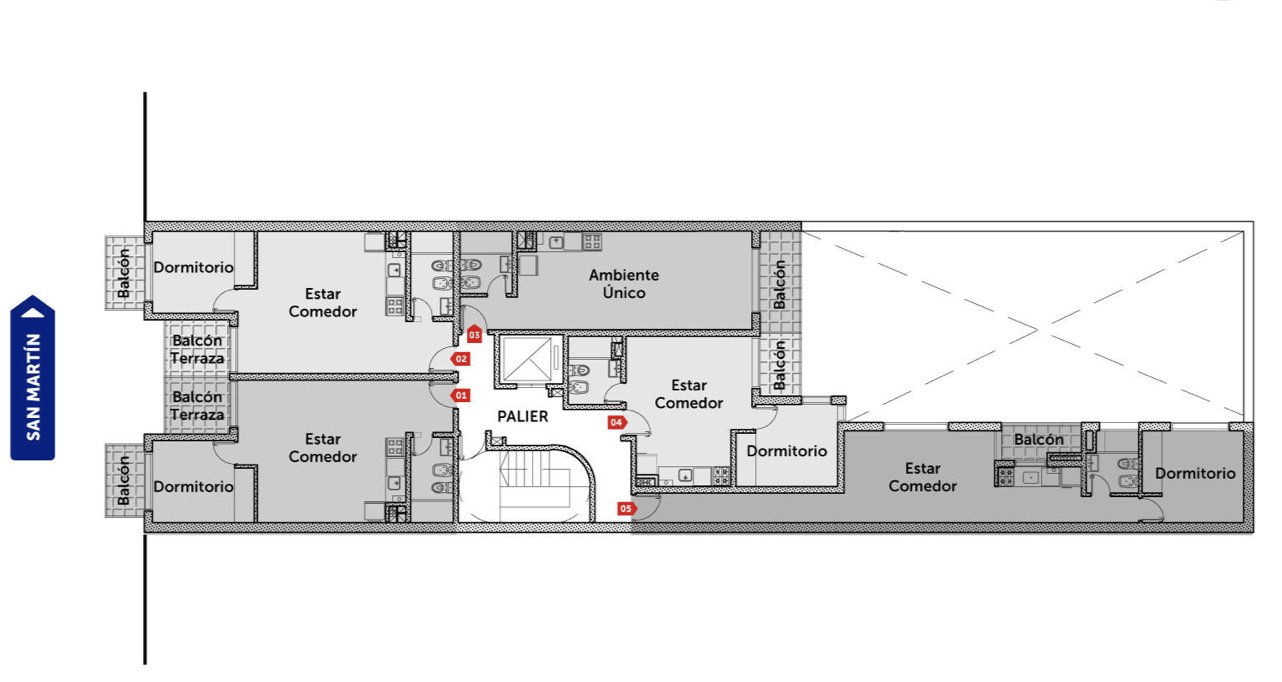
El edificio consta de 8 pisos, 5 departamentos por piso. Unidades de 1 dormitorio y monoambientes. Unidades al frente y contrafrente, de 32m2 a 45m2.
Cocina completamente amoblada, baño completo con bañera.
*Disponibilidad en varios pisos.
Cuenta con interesantes detalles de calidad: porcelanatos, grifería FV y Johnson, puertas de seguridad con aislante acústico y marcos. Frente de placard.
Todos los servicios incluyendo el gas. Pisos de Porcelanato de 1m x 1m.
* Compuestos de un ambiente principal que incluye cocina y living comedor y dormitorio amplio. La cocina es completa con amoblamientos y bajo mesadas.
Cuenta con Baños completos con bañera. Balcones con blindex.
Unidades 1 dormitorio desde 32 mts desde 50.000 usd
Unidades monoambientes desde 32 mts en 50.000 usd
Financiación:
- Entrega 40% y 40 cuotas ajustadas al Índice de la Cámara de la Construcción.
Las fotos corresponden a un edificio terminado de la misma empresa.
Visite con nosotros la obra y el showroom disponible.
| Detalles | |
|---|---|
| Código | KP421896 |
| Categoría | Departamentos |
| Estado | Activa |
| Ubicación | San Martin 1667 |
| Zona | centro |
| Barrio | Centro |
| Localidad | Rosario, Santa Fe |
| Tipo de operación | En venta |
| Ambientes | 2 |
| Dormitorios | 1 |
| Baños | 1 |
| Piso | No definido |
| Pisos en el edificio | 8 |
| Mts totales (mt²) | 32.00 |
| Mts cubiertos (mt²) | 30 |
| Año de construcción | 2027 |
| Nueva construcción / A estrenar | 1 |